Agro-balt
Производство технологического оборудования для пищевых производств
+7 (812) 645-0288
+7 (812) 649-1988
info@agro-balt.ru
Заказать звонок
Меню
Главная
О компании
Продукция
Видео
Услуги
Контакты
Каталог продукции
Проектирование пищевых производств
Проектирование цехов на судах
Проект1
Проект2
Проект3
Проект4
Проект5
Проект6
Проект7
Проект8
Проект9
Проектирование предприятий береговой переработки
Проект1
Проект2
Проект3
Проект4
Проект5
Проект6
Изготовление оборудования для пищевых производств
Ввод оборудования в эксплуатацию
Сервисное обслуживание пищевых производств
Металлообработка
Металлоизделия на заказ
Главная
/
Услуги
/
Проектирование пищевых производств
/
Проектирование предприятий береговой переработки
/
Проект3
/
Продукция
/
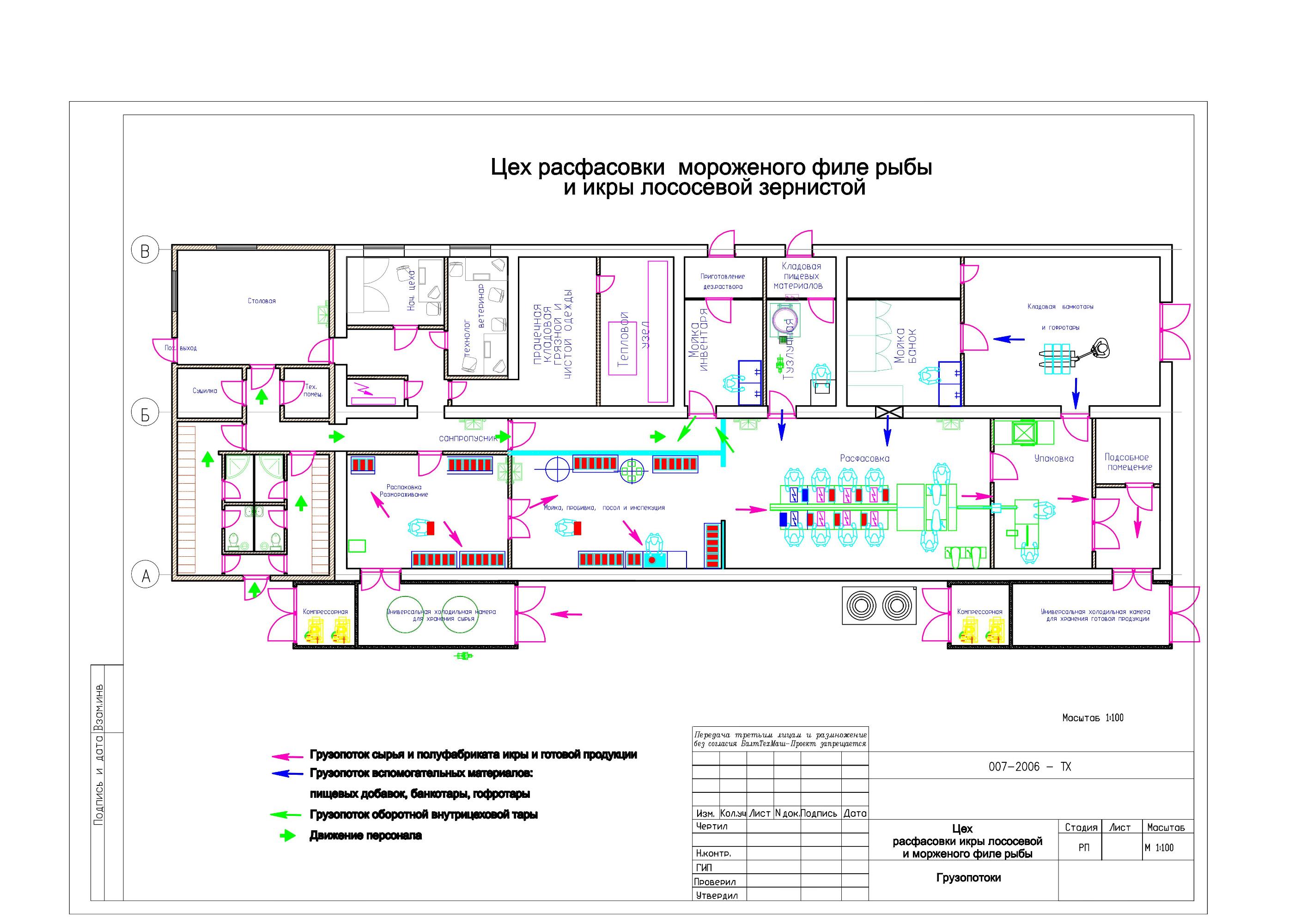
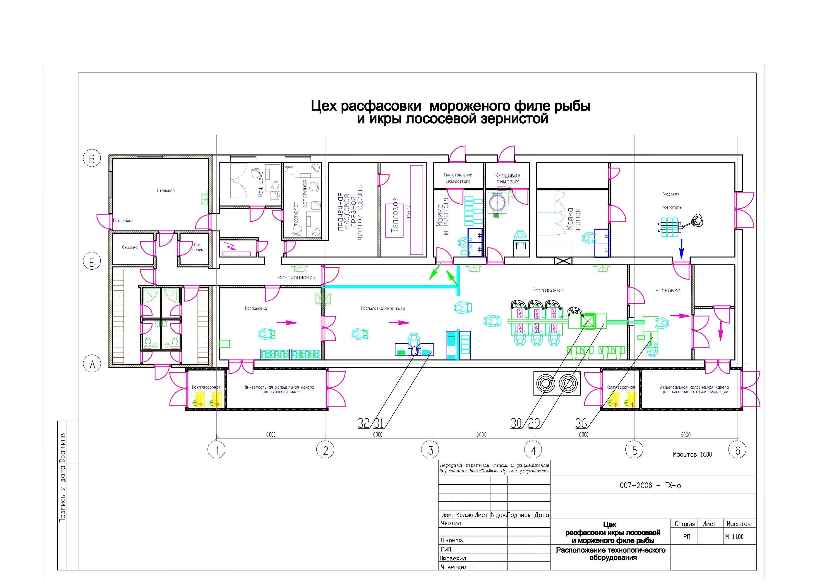
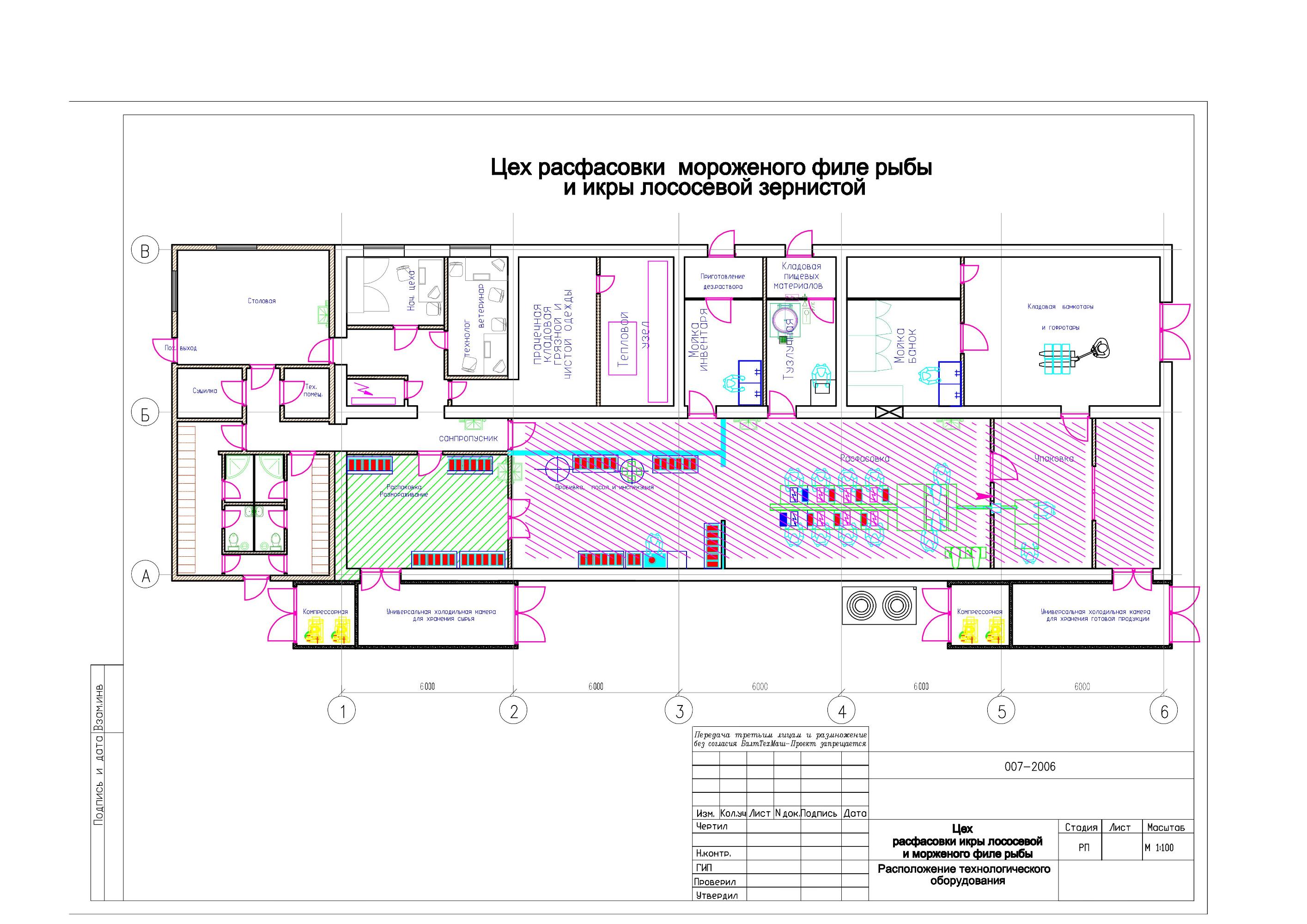
Проект по переработке рыбы и икры
Проект по переработке рыбы и икры
Технические характеристики:
Запросить коммерческое предложение
Описание продукта:
Больше видео на нашем канале в
RUTUBE
ОБРАТНАЯ СВЯЗЬ